San Pellegrino Terme
(Valle Brembana Inferiore)
Villa

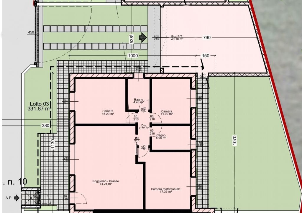
San Pellegrino Terme – Frazione Cà de Rizzi In una delle zone più tranquille e panoramiche della località, proponiamo una villetta moderna mono-piano affiancata, parte di una bifamiliare di nuova costruzione, pensata per chi desidera indipendenza, comfort e un contesto immerso nel verde. Sebbene l’abitazione sia affiancata all’altra unità, la privacy è totale: l’ingresso pedonale e quello carraio sono esclusivi, così come tutte le aree esterne. Nessun varco o spazio è condiviso, garantendo la stessa autonomia di una soluzione singola. La casa si sviluppa tutta al piano terra, caratteristica particolarmente apprezzata per la comodità negli spostamenti quotidiani. All’esterno, l’immobile dispone di circa 180 mq tra giardino e superfici scoperte, ideali per chi vuole godersi uno spazio privato all’aperto senza l’impegno di una manutenzione eccessiva. La posizione offre un valore aggiunto importante: dalla proprietà si accede direttamente alla ciclovia della Valle Brembana, ottima per passeggiate e giri in bicicletta immersi nel paesaggio montano. Il centro del paese e tutti i principali servizi rimangono a soli pochi minuti. La villetta è progettata secondo i più moderni criteri costruttivi, con l’obiettivo di raggiungere la classe energetica A3. Tra le dotazioni previste: • pompa di calore abbinata al riscaldamento a pavimento, • isolamento termoacustico avanzato, • ampie superfici vetrate termoisolanti che valorizzano la luce naturale. Gli interni sono organizzati in modo funzionale e razionale: • soggiorno con cucina a vista con affaccio sul giardino, • tre camere da letto, due delle quali sono matrimoniali, • due bagni finestrati con finiture contemporanee. La proprietà è completata da una autorimessa doppia, collegata direttamente all’abitazione, con spazio per due autovetture affiancate e ottima manovrabilità. Perché sceglierla: • Soluzione in bifamiliare ma totalmente autonoma • 180 mq di esterno privato, ideale per chi desidera uno spazio verde contenuto ma funzionale • Costruzione architettonicamente moderna ed efficiente • Vicinanza al centro e alle Terme • Collegamento diretto alla ciclovia • Ambienti tutti su un unico livello. L’INIZIATIVA E' ATTUALMENTE IN FASE DI PREVENDITA, con raccolta prenotazioni aperta. L’avvio dei lavori è previsto al raggiungimento del 60% di adesioni complessive: fino a tale soglia, la prenotazione è non vincolante e eventuali depositi sono interamente rimborsabili. Questa formula consente di riservare la propria abitazione in tutta sicurezza,

€ 375.000

CARATTERISTICHE DELL'OFFERTA
Riferimento 13033
Categoria Immobili residenziali
Settore residenziale
Esterni Giardino
Anno costruzione
Metri quadri 143
Classe energetica A3 - 000  m2a
Classe di Rendimento Energetico è un indice delle performance termiche che indica i livelli di riscaldamento e raffrescamento richiesti in inverno ed in estate. Gli immobili di classe A o B garantiscono maggior comfort e sono i più efficienti in termini di consumi di energia.
Piano Terra
Posizione in campagna
Accessibilità strada privata
Riscaldamento auton. a pavimento
Grado costruzione Medie Finiture
Arredato no
Locali Bagni Box Posti auto
4 2 1 2
Consulente Piernando Gallo
Assistente Nessun assistente

RICHIEDI INFORMAZIONI
BREMBANICA
Gallo & Partners Unipersonale s.r.l. - P.I. 04076640160
Tel. 035 543000 - info@brembanica.com
Privacy e termini di utilizzo