Ponteranica
(Interland Nord Ovest)
Valtesse - Baioni
Stabile

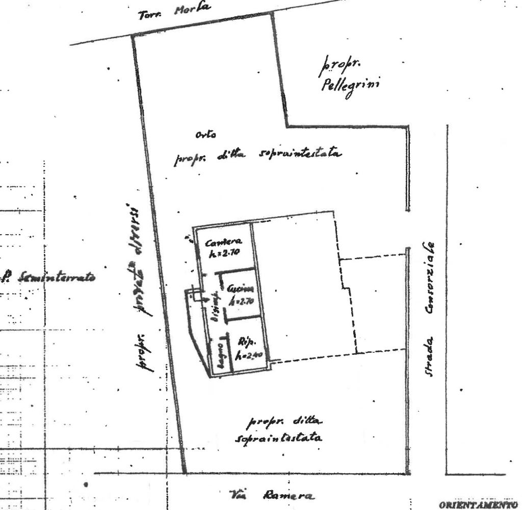
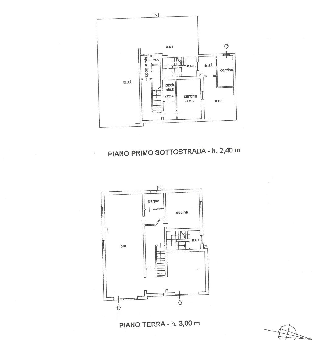
Lo stabile è situato in località Ponteranica, nella frazione Ramera, ai confini con la città di Bergamo, in posizione particolarmente visibile e strategica, direttamente affacciata su una strada provinciale ad alto traffico veicolare. L’edificio, risalente agli anni ’60, è composto da diverse unità immobiliari con destinazioni differenti: Piano terra: ampio locale commerciale attualmente locato e adibito ad attività di ristorazione, dotato di area esterna antistante adibita a parcheggio. Il locale è stato oggetto di ristrutturazione interna in epoca recente ed è corredato da vari locali accessori ad uso ripostiglio al piano sottostante. Primo piano: grande appartamento composto da cinque locali oltre servizi, con soprastante ampio sottotetto sfruttabile come soffitta o locale di sgombero. Piano sottostrada: ulteriore unità abitativa costituita da un appartamento bilocale. Retro dell’edificio: sei autorimesse di dimensioni medio-piccole. Dal punto di vista manutentivo, gli appartamenti necessitano di interventi di ristrutturazione, mentre il locale commerciale si presenta in buone condizioni grazie ai lavori effettuati recentemente. Tutte le unità risultano attualmente locate, con alcuni contratti di affitto prossimi alla scadenza, offrendo quindi potenziali margini di valorizzazione e riassetto locativo. Nel complesso, l’immobile si distingue per la buona visibilità, la versatilità d’uso e il potenziale di riqualificazione.

€ 370.000

CARATTERISTICHE DELL'OFFERTA
Riferimento 13060
Categoria Immobili residenziali
Settore residenziale
Esterni Info non disponibile
Anno costruzione 1960
Metri quadri 400
Classe energetica G - 000  m2a
Classe di Rendimento Energetico è un indice delle performance termiche che indica i livelli di riscaldamento e raffrescamento richiesti in inverno ed in estate. Gli immobili di classe A o B garantiscono maggior comfort e sono i più efficienti in termini di consumi di energia.
Piano Pi� livelli
Posizione Servita
Accessibilità Strada pubblica
Riscaldamento Autonomo
Grado costruzione Economico/Pop.
Arredato no
Locali Bagni Box Posti auto
12 3 7 7
Consulente Piernando Gallo
Assistente Nessun assistente

RICHIEDI INFORMAZIONI
BREMBANICA
Gallo & Partners Unipersonale s.r.l. - P.I. 04076640160
Tel. 035 543000 - info@brembanica.com
Privacy e termini di utilizzo