Villa d'Alme'
(Interland Nord Ovest)
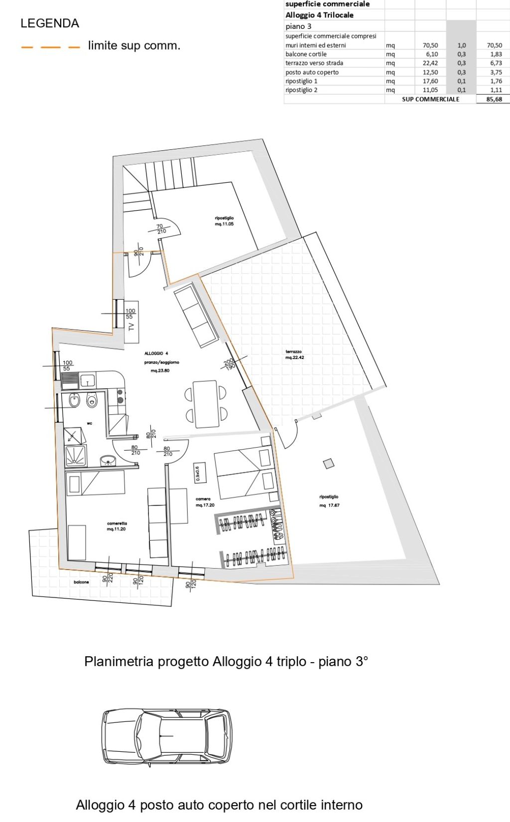
Trilocale
Nel suggestivo contesto del borgo storico di Villa d'Almè, proponiamo in vendita una caratteristica mansarda situata al terzo ed ultimo piano di un affascinante edificio d’epoca oggetto di riqualificazione.
Questa soluzione si distingue per il suo elemento più esclusivo: un ampio terrazzo panoramico di forma quadrata, raro per questa tipologia, paragonabile per vivibilità a quello di un attico. Uno spazio esterno davvero generoso, ideale per prendere il sole, organizzare pranzi e cene all’aperto o semplicemente rilassarsi godendo di una vista aperta e suggestiva che spazia dalle magnifiche vette prealpine ai dolci colli verdi circostanti.
Internamente l’appartamento si sviluppa come un comodo trilocale, caratterizzato da ambienti ben distribuiti e funzionali. L’ingresso si apre su un accogliente soggiorno con angolo cottura, uno spazio luminoso e conviviale con una grande vetrata sul terrazzo. La zona notte comprende due spaziose camere da letto, ideali sia per una famiglia che per chi desidera ambienti versatili da adibire anche a studio o zona ospiti.
A completare l’abitazione, un bagno ben organizzato, due pratici e ampi ripostigli — particolarmente utili in una soluzione mansardata — e un ulteriore balcone esposto a sud, che garantisce ottima luminosità durante tutta la giornata.
L’immobile sarà completamente ristrutturato con finiture moderne e impianti di ultima generazione: riscaldamento a pavimento, sistema autonomo in pompa di calore e serramenti ad alta efficienza energetica, per assicurare comfort abitativo e contenimento dei consumi. La consegna è prevista per metà 2027.
Completa la proprietà un posto auto coperto ad uso esclusivo, situato nella riservata corte interna dello stabile.
Una soluzione unica, perfetta per chi desidera vivere in un ambiente esclusivo dal fascino autentico, arricchito da uno spazio esterno raro e vivibile e da una vista aperta e impagabile.
€ 160.000